Przejdź do głównej zawartości
Wczytywanie...

OGŁOSZENIE – WYNAJEM LOKALU BIUROWEGO

Społem Zakopane Spółka z o.o wynajmie lokal użytkowy w centrum Zakopanego przy ulicy Krupówki 41 w budynku Bazaru Polskiego.

OGŁOSZENIE – WYNAJEM LOKALU BIUROWEGO

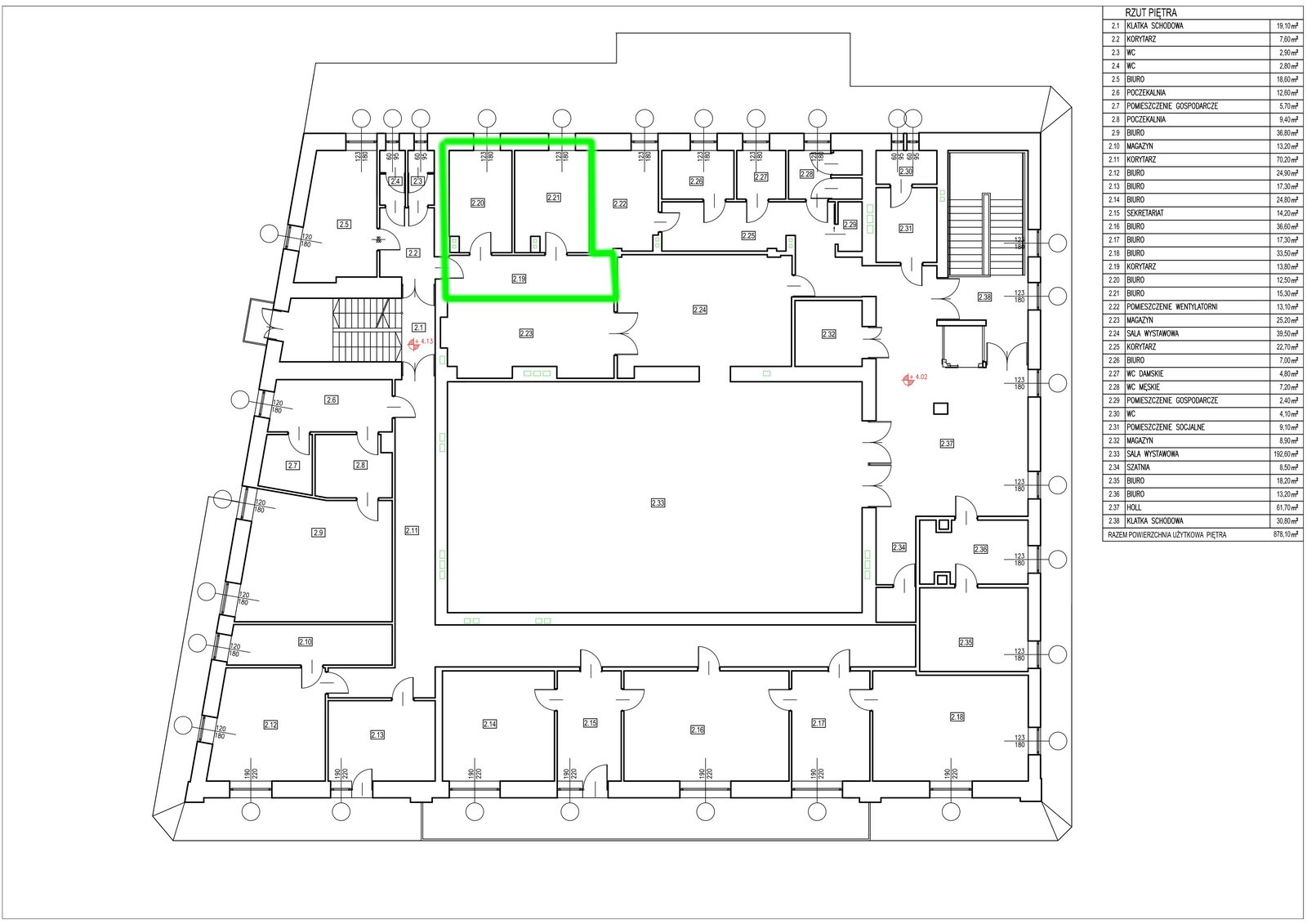
Do wynajęcia funkcjonalny lokal biurowy o łącznej powierzchni 41,80 m², składający się z:

  •     Pokój 2.23 – 12,50 m²
  •     Pokój 2.24 – 15,30 m²
  •     Korytarzyk – 14,00 m² (idealny jako poczekalnia lub recepcja)
  •     Pomieszczenie porządkowe (zlokalizowane poza rzutem)

Opis lokalu
Lokal obejmuje dwa niezależne pokoje biurowe połączone prywatnym korytarzem. Taki układ zapewnia komfort pracy oraz wygodną przestrzeń dla klientów lub kursantów.
Doskonale sprawdzi się jako biuro, gabinet, siedziba firmy szkoleniowej lub działalności usługowej.

Warunki najmu:

  •     Czynsz: 4.000 PLN netto / miesiąc
  •     Media i koszty eksploatacyjne: według zużycia 
  •     Kaucja: równowartość dwumiesięcznego czynszu brutto

Dostępność: od zaraz

Lokal znajduje się w zadbanym budynku z wygodnym dostępem do części wspólnych.

Kontakt:
Szczegółowe informacje oraz umawianie prezentacji lokalu dostępne są pod wskazanym numerem telefonu lub adresem e-mail.

  • Kierownik Działu Administracyjno -Technicznego tel. 505 647 802
Powrót